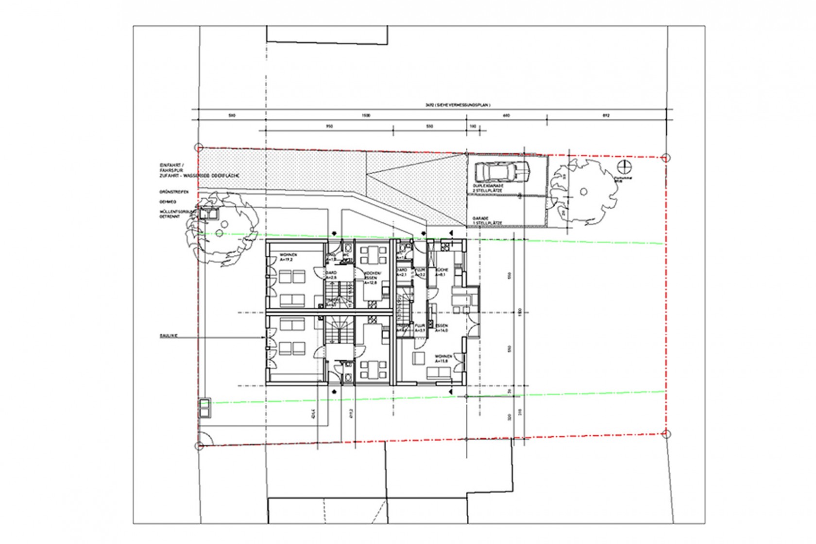
3-Spänner Olivierstrasse

MÜNCHEN 2001

Besonderheiten

Haus für drei Familien mit dazugehörigen Freiflächen nach den Regeln der Gartenstadtsatzung