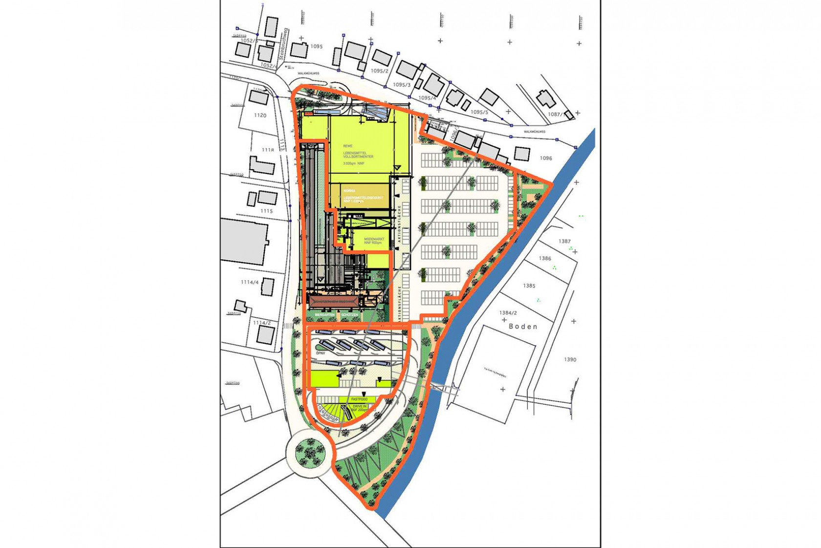
Einkaufszentrum mit Sportstätten

BAD WINDSHEIM 2006

Besonderheiten

Entwicklung verschiedener Fachmärkte auf einem ehemaligen Sportareal unter Einbeziehung einer Schießanlage