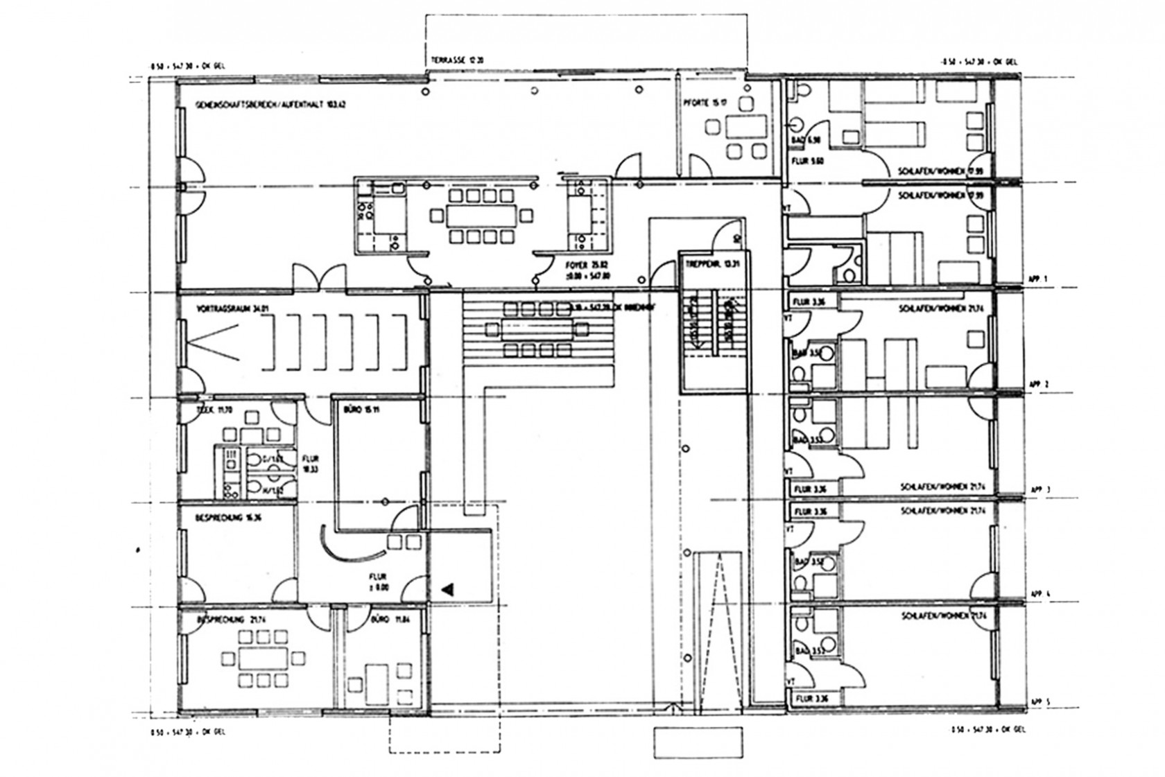
Elternhaus Ronald McDonald
MÜNCHEN 1992 - 1993 Rose Birnbeck-Scheer in LAI Lanz Architekten & Ingenieure
Besonderheiten
Unterbringung und Betreuung von Eltern schwerkranker Kinder auf dem Gelände des Klinikum Großhadern. Die hierarchische Anlage und Form des Gebäudes tragen dem Schutz und dem Bedürfnis nach Geborgenheit der Menschen in einer besonders kritischen Situation Rechnung




