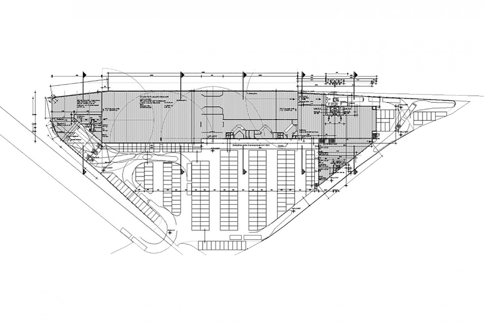
Gewerbezentrum

HAßFURT 2001

Besonderheiten

Märkte und Parkplätze durch kleine Maßnahmen integrieren und eine Identität ohne aufgesetzte Gesten erzielen