Kostengünstiges Bauen

CAPITAL 1983 Wettbewerb

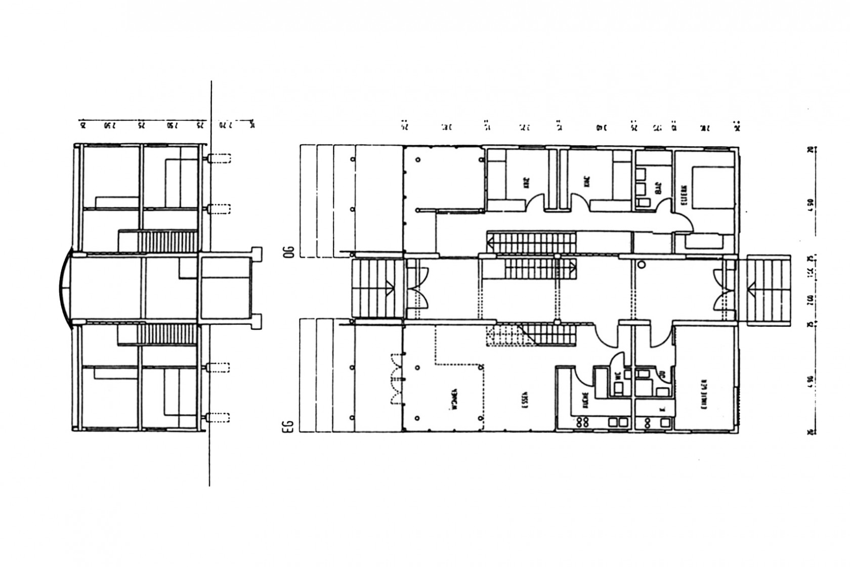
Besonderheiten

Flächensparendes Doppelhaus mit gemeinschaftlich zu nutzender Zwischenzone und individuellen Ausbaumöglichkeiten. Für eine stärkere städtebauliche Verdichtung können die Einheiten zu unterschiedlichen Gruppen addiert werden.