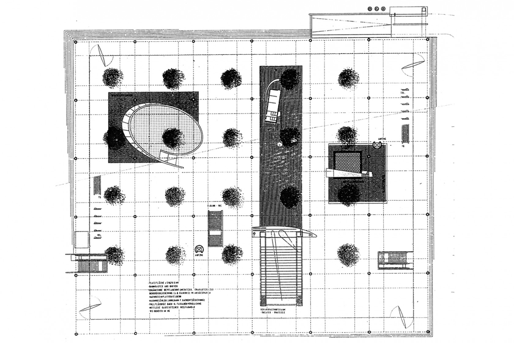
Marienhof

MÜNCHEN 1987

Besonderheiten

Eine platzräumliche Utopie für das Herz Münchens – Durchgangsplatz und Verweilort im urbanen Schnittpunkt