Planung einer Villa
LESNIKI, UKRAINE
Besonderheiten
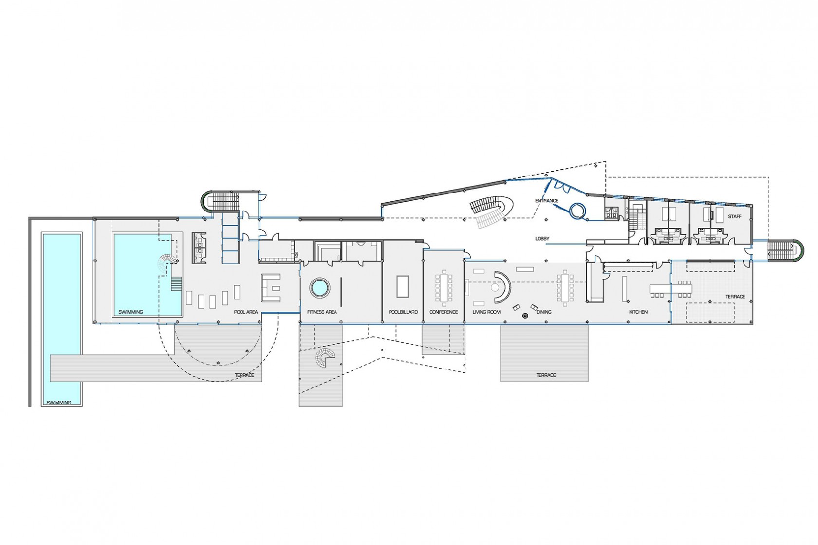
Der Baukörper fügt sich mit seiner modernen Formensprache in die Landschaft ein. Er öffnet sich zur Natur und grenzt sich deutlich vom Nachbarn ab. Durch die Integration von Wasser- flächen und farbigem Glas wird der Villa ein ausdrucksstarkes, repräsen- tatives Erscheinungsbild mit hoher Aufenthaltsqualität verliehen.
Idee
Optimale Belichtung des tiefen Grundrisses, Anbindung an das Bettenhaus im angeho- benen EG, Technik im Untergeschoss
Bauherr
- Privat
Kubatur
- 7500 cbm
Flächen - eine Wohneinheit
- 2500 qm Wohnfläche
Planung
- Sommer 2006 - Frühjahr 2007






