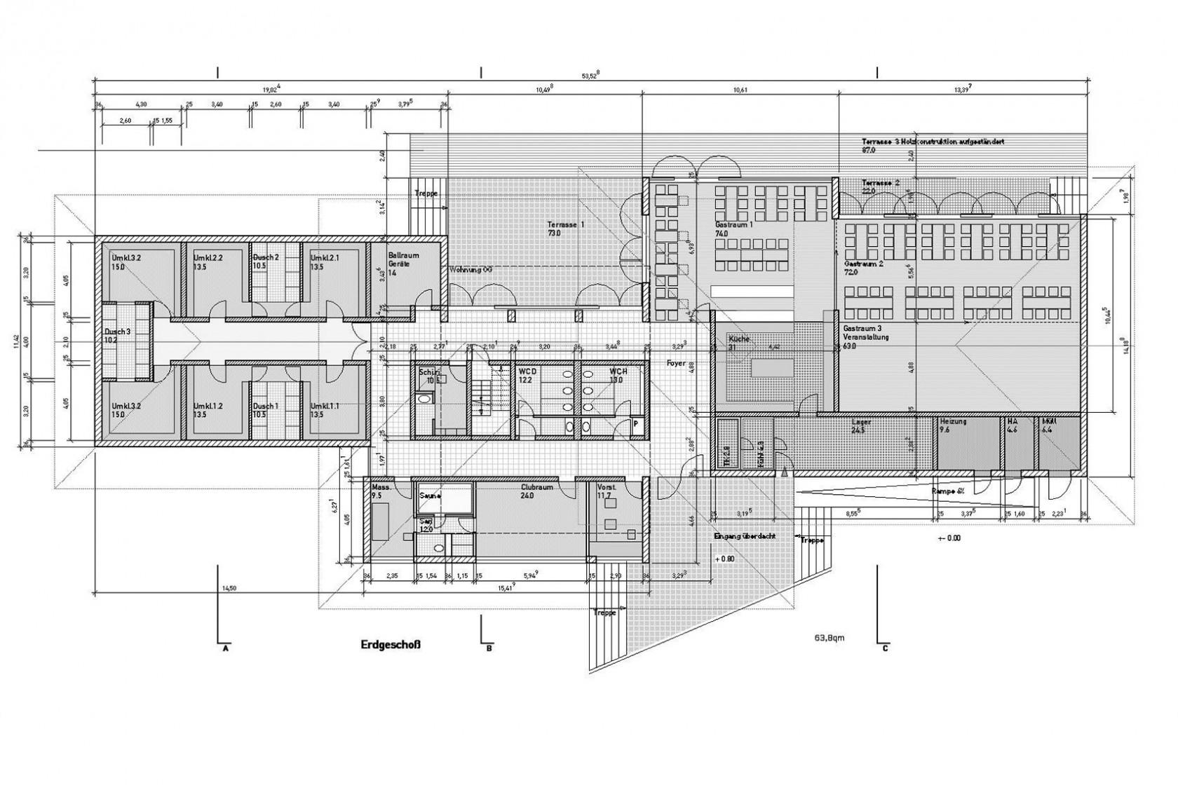
Sportlerheim

BAD WINDSHEIM 2006

Besonderheiten

Neubau eines Sportlerheimes am neuen Fußballfeld mit Restaurant