Projekte
Aktuelles
Büro
Kontakt
Projekte
Aktuelles
Büro
Kontakt
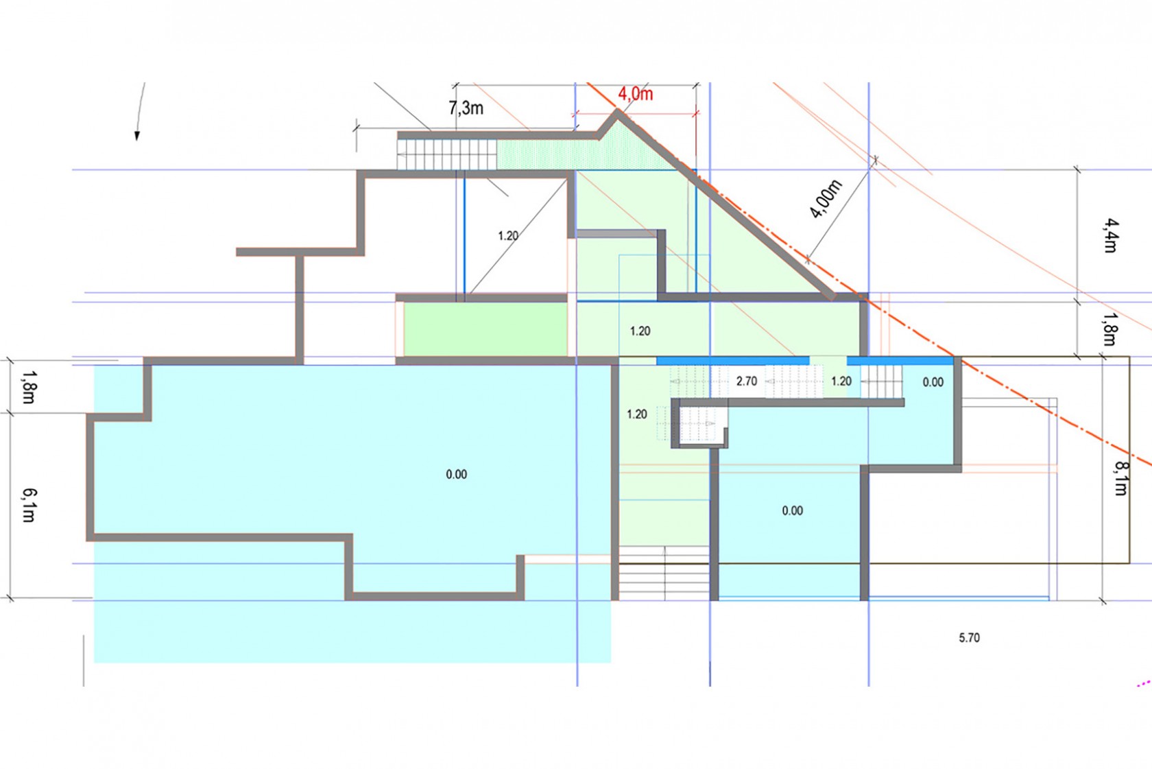
Villa Mallorca
MALLORCA CAP DE PERA 2012
Besonderheiten
Haus an den Klippen – Erweiterung, Anbau
Previous
Next