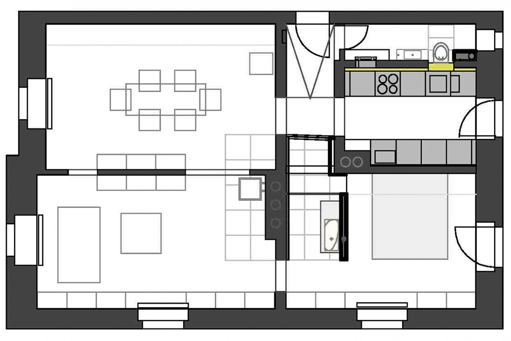
Altbauwohnung

MÜNCHEN WESTEND 2007 - 2008

Besonderheiten

Sanierung und Umbau einer 2-Zimmerwohnung im Westend-klassischer Gründerzeitgrundriss wird zu einem offenen Wohnkonzept gestaltet