Wohnhaus in Allach

MÜNCHEN UNTERMENZING 2008

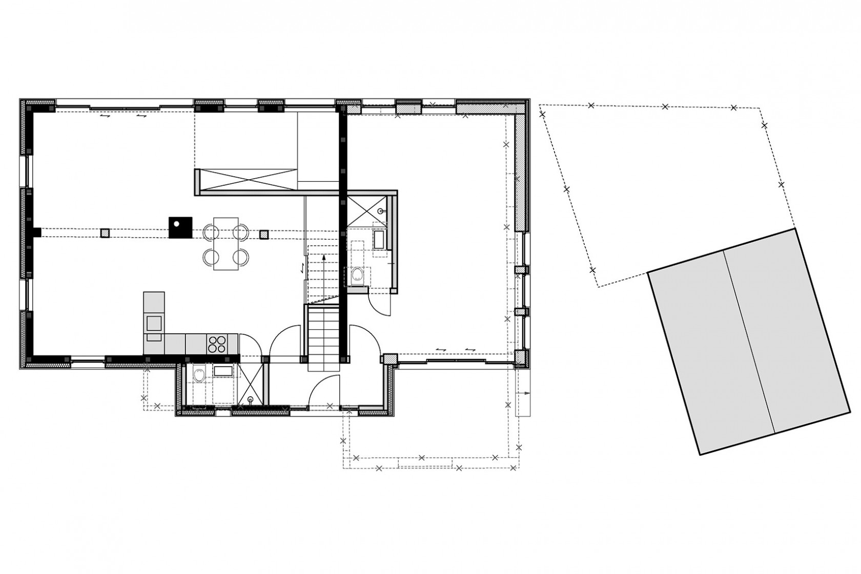
Besonderheiten

Legalisierungsverfahren für einen 65 Jahre alten Schwarzbau im Außenbereich, Modernisierung und Erweiterung des Wohnhauses