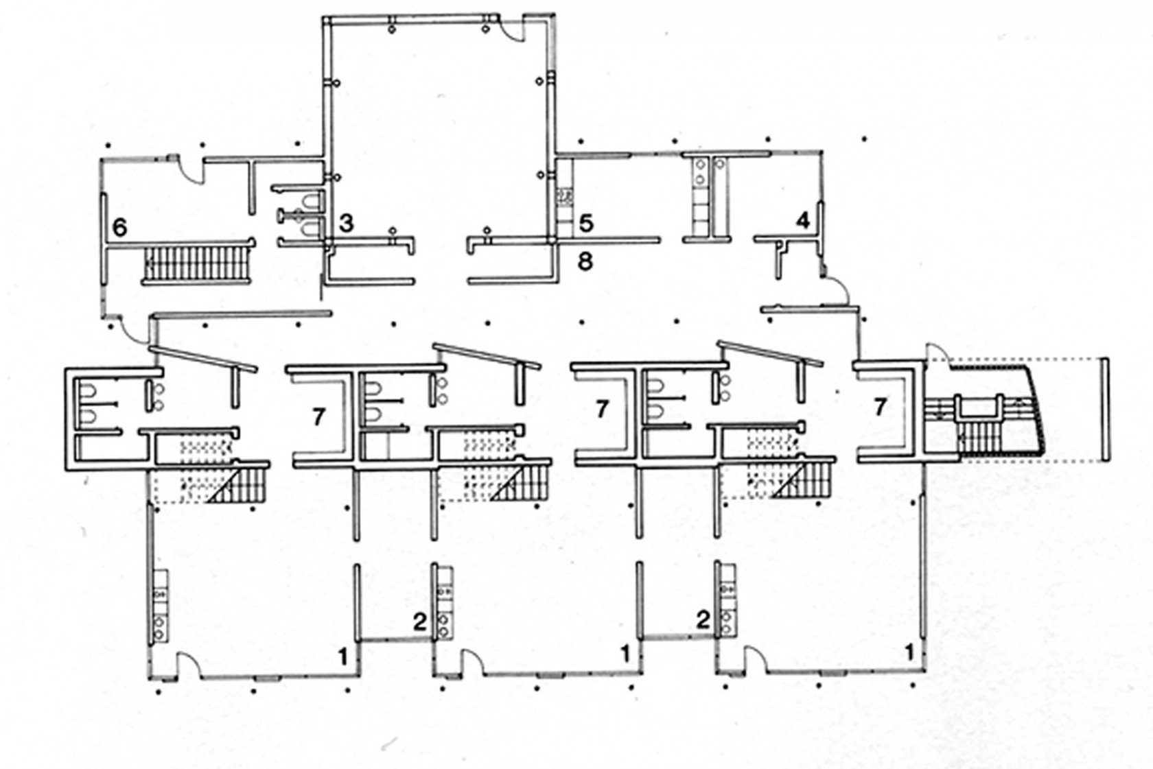
Kindergarten

POING 1994 - 1996 Rose Birnbeck als Mitarbeiterin in LAI Lanz Architekten+Ingenieure

Besonderheiten

Kindergarten für drei Gruppen als 1. Bauabschnitt des Katholischen Kirchenzentrums Seliger Pater Rupert Mayer