Schwesternwohnheim

MÜNCHEN 1994 - 1995 Rose Birnbeck in LAI Lanz Architekten+ Ingenieure

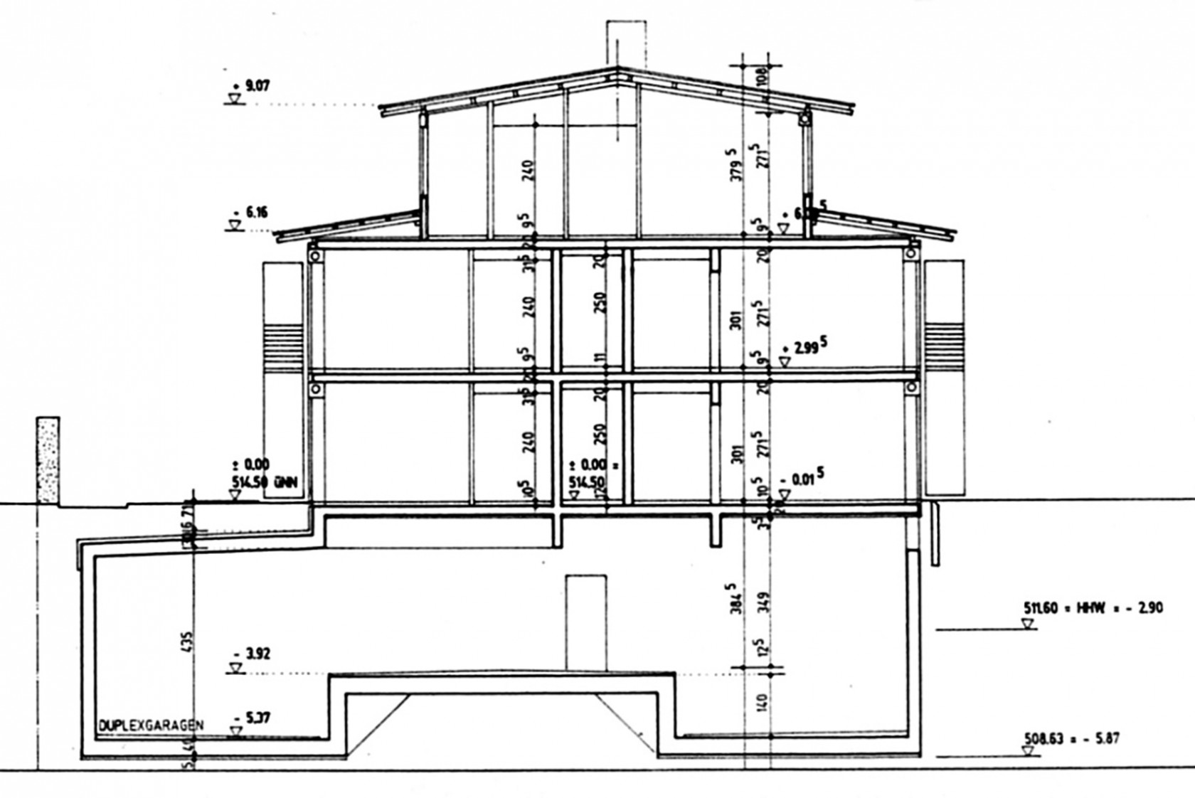
Besonderheiten

Neubau eines Schwesternwohnheims für das Krankenhaus des 3.Ordens